
Prácticas
He realizado las Prácticas para el Certificado de Profesionalidad de Representación de Proyectos de Edificación en el estudio Nistal Arquitectos, en Bilbao.
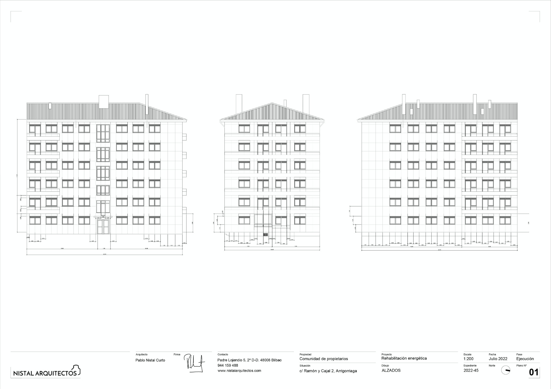
Elaborando Planos de los Alzados para un proyecto de reforma de fachada. Con AutoCad partiendo de fotografías:


Infografías con distintos acabados para la fachada de un edificio de nueva construcción en fase de diseño. Con Photoshop partiendo del Plano del Alzado:
Infografías en 3D para un proyecto de transformación de un piso en 2 viviendas. Con SketchUp y Photoshop partiendo del Plano de Planta de la propuesta preseleccionada:

